Семеновский — одноэтажный дом для комфортной загородной жизни
Проект «Семеновский» от Articomfort — это современный одноэтажный дом, созданный для тех, кто ценит функциональность, тепло и простоту форм. Лаконичная архитектура, продуманная планировка и надёжные материалы делают этот дом идеальным выбором для постоянного проживания или отдыха за городом.
Особенности проекта:
- Архитектура: компактный одноэтажный дом с классическим силуэтом и современными фасадными решениями.
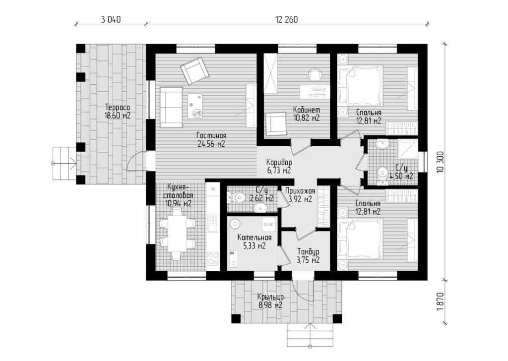
- Планировка: просторная гостиная с выходом на террасу, отдельная кухня-столовая, три спальни и кабинет — всё, что нужно для семьи из 3–5 человек.
- Функциональность: предусмотрены котельная, прихожая и два санузла — для удобства и уюта каждого жильца.
- Терраса: открытая площадка для отдыха и встреч на свежем воздухе, гармонично связанная с внутренним пространством дома.
Технические характеристики:
- Фундамент: монолитная утеплённая плита.
- Стены: газобетон ISTKULT D400 толщиной 400 мм — тёплые, долговечные и энергоэффективные.
- Кровля: гибкая черепица — надёжное и эстетичное решение для защиты дома.
Преимущества проекта «Семеновский»:
- Рациональная планировка без лишних коридоров — максимум полезной площади.
- Просторная гостиная (24,5 м²) — центр семейной жизни и отдыха.
- Кухня-столовая с выходом на террасу для летних вечеров.
- Две спальни и кабинет — уют и приватность для всех членов семьи.
- Лаконичный, но выразительный фасад в современном стиле.
Почему выбирают Articomfort?
Проект «Семеновский» сочетает в себе надёжные технологии и продуманный дизайн. Это дом, в котором комфортно жить круглый год, наслаждаясь природой и домашним уютом.
Articomfort — дома, в которых хочется жить.

















